|
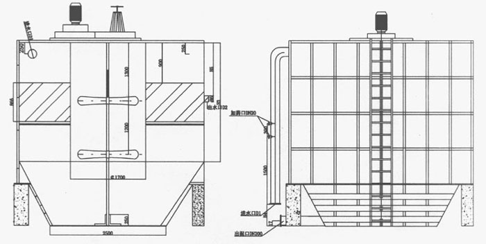
WYX/B型化学除油器是CYCW型系列化学除油器更新换代产品,它具有高效、节能的特点,与CTCW型化学除油器相比,具有以下优点: 1.WYX/B型化学除油器能将设备沉淀池内积聚的泥渣循环流动,与原水中的杂质、油份相互碰撞、接触、吸附,充分发挥投加药剂的作用与CYCW型化学除油器处理效果相比,提高了处理效率和处理效果。 2.运行成本一步降低:一是由于药剂作用发挥充分,可节省药剂投加量;二是降低了电能消耗。它与CYCW型化学除油器设备相比,其投加的药剂药量可节省30%以上;降低电能消耗在60%以上,节约了运行成本。 3.允许稳定、适应性强。由于设备容积大,且部分污水在设备中回流,增加了药剂在污水中的碰撞及吸附机会,增强了药剂的作用,加速了悬浮物及油份的絮凝沉降速度,提高了处理效果。 4.管理更为方便。WYX/B型化学除油器为单斗排泥,且泥斗容积大,操作方便,排泥周期调节余地大。泥浆回流量可人工调节,只要升降叶轮装置高度即可,其调节范围200mm。当设计选用单台设备运行时,可以不建泥浆池,用泥浆泵从泥斗中吸泥直接送去压滤,或将沉淀物送回旋流地(或一次铁皮坑),节省了后部工序处理投资,且减少占地面积,更适合老流程的改造。
 |